Suchy vrch
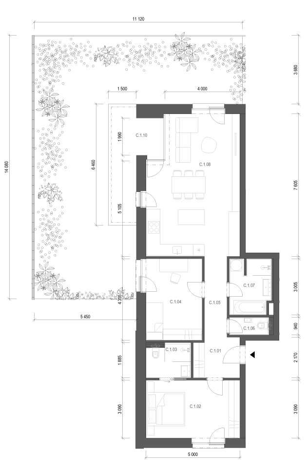
C.1.01 Vstupná predsieň4,35 m2
C.1.02 Spálňa18,07 m2
C.1.03 Kúpeľňa3,16 m2
C.1.04 Detská izba12,82 m2
C.1.05 Chodba5,18 m2
C.1.06 WC2,03 m2
C.1.07 Kúpeľňa6,24 m2
C.1.08 Kuchyňa + obývacia izba36,15 m2
  
PODLAHOVÁ PLOCHA88,00 m2
TERASA12,95 m2
KOBKA2,13 m2
CELKOVÁ VÝMERA103,08 m2
+ ZÁHRADA65,02 m2
Možnosť zakúpenia parkovacieho státia a extra kobky

Všeobecné

Dispozícia podľa pôdorysu z karty bytu.
Konštrukčný systém parkovacieho podlažia bytového domu a rodinných domov je tvorený
priestorovou železobetónovou monolitickou konštrukciou. Vodorovné nosné konštrukcie sú z
monolitických železobetónových dosiek. Zvislé nosné konštrukcie sú monolitické železobetónové
nosné steny.
Konštrukčný systém nadzemných podlaží bytových domov je tvorený kombináciou obvodového
muriva a monolitických železobetónových stropných dosiek
Medzi bytové deliace priečky sú tvorené nosným akustickým murivom hr. 300 mm.
Vnútorné deliace priečky sú sadrokartónové o hrúbke 125 mm.
Pre inštaláciu rozvodov médií sú využívané tzv. predsteny.

Vykurovanie a chladenie

Vykurovanie je zabezpečené systémom teplovodného podlahového vykurovania. V kúpeľni je
elektrický rebríkový radiátor. Chladenie je zabezpečené podstropným /nástenným fancoilom
v centrálne miestnosti (obývačka/kuchyňa)

Vzduchotechnika

Vetranie bytov je zabezpečené centrálnou rekuperáciou s prívodom čerstvého tepelne upraveného vzduchu a samostatnou reguláciou pre každý byt.

Zdravotechnika

Batérie vodovodné - pákové chrómové
Umývadlo: biele keramické
WC závesné s podmietkovou splachovacou nádržkou
Vaňa alebo sprchovací kút, prípadne kombinácia oboch

Omietky

Na murivá a stropy je použitá omietka. Vnútorná omietka je ošetrená náterom bielej farby.
Sadrokartónové steny sú opatrené náterom bielej farby s výnimkou miest pod obklady.

Okná a dvere

Veľkoformátové francúzske hliníkové okná a steny. Zasklenie vyhotovené s izolačného trojskla so
zvýšeným faktorom prestupu svetla. Okná sú opatrené vonkajšími hliníkovými žalúziami
s elektrickým pohonom.
Vstupné dvere do bytov sú plné, bezpečnostné, osadené v oceľovej zárubni s požiarnou
odolnosťou a s dostatočnou zvukovou odolnosťou
interiérové dvere a zárubne – interiérové dvere vo vyhotovení dyha , zárubně obložkové.

Podlahy, obklady dlažby

Izby: plávajúce laminátové podlahy, obvodové lišty, prechodové lišty Kuchyne, obývacie izby, predsieň̌, chodby: laminátová resp. vinylová podlaha
Kúpeľne: keramická dlažba
WC: keramická dlažba
Balkóny: mrazuvzdorná keramická dlažba/ drevené terasové dosky na drevenom rošteterasa – drevené terasové dosky na drevenom rošte obklady stien kúpeľní a WC - keramický obklad stien vo výške 2,1 m resp. 1,2 m, vrchná časť nad obkladom biela maľba na tenkovrstvej omietke alebo sadrokartóne.
Detailný popis vybavenia bytu bude súčasťou pripravovaného dokumentu Štandard bytu.

Pivničná kobka

Štandardne je pridelená jedna pivničná kobka ku každému bytu. Povrch podlahy pivničnej kobky je z keramickej dlažby resp. betónu ošetreného náterom. Jednotlivé pivničné kobky sú medzi sebou oddelené montovanou drevokovovou priečkou. Pivničná kobka prislúchajúca ku bytu a je spravidla situovaná na rovnakom podlaží ako byt, alebo je priamo jeho súčasťou.

Spoločné priestory

Vstup do bytového domu tvoria hliníkové rámové presklené dvere s elektrickým zámkom ovládaným bezdotykovým čítacím zariadením. Vstup do bytového domu je bezbariérový a je vybavený poštovými schránkami a audio-video vrátnikom pre jednotlivé byty.

Garáže a parkovanie

Parkovanie je tvorené z garážových parkovacích státí v suteréne bytového domu a vonkajších parkovacích plôch. Vjazd do garáže je riešený cez garážovú bránu. Priestor garážových parkovacích státí je priamo prepojený s jednotlivými bytovými domami.

Splátkový kalendár

Na nákup vášho nového domova vám dnes stačí 20% z ceny a zvyšných 80% až po kolaudácií.

15 %

pri podpise zmluvy o budúcej zmluve

85 %

pri kolaudácií bytového/rodinného domu

Hypokalkulačka

Cena s 23% DPH 364 900 €

Mám záujem
Karta bytu Karta bytu Karta bytu Katalóg interiéru

Zdielať

Štandard bytu

Obklady a dlažby

Rektifikované veľkoformátové obklady a dlažby s moderným dizajnom a precíznym vyhotovením.

Interiérové dvere

Kvalitné drevené dvere v obložkovej zárubni, ktoré dotvárajú moderný interiér.

Vaňa / Sprchový kút

Možnosť výberu medzi elegantnou vaňou alebo priestranným sprchovým kútom s bezbariérovým vstupom.

Umývadlá a batérie

Kvalitné dizajnové umývadlá doplnené úspornými a štýlovými batériami pre maximálny komfort.

Presvetlenie a svetlá výška

Veľkoformátové hliníkové francúzske okná s izolačným trojsklom, výška miestností až 2,8 m.

Tienenie

Elektricky ovládané vonkajšie žalúzie pre maximálny komfort a reguláciu presvetlenia.

Klimatizácia

Aktívna výmena čerstvého vzduchu a chladenie pomocou lokálnych jednotiek.

Sadrové omietky

Elegantný hladký vzhľad, ktorý umožňuje bezproblémovú aplikáciu tapety.

Podlahové kúrenie

Riešenie, ktoré šetrí energie a zabezpečuje príjemné teplo pod nohami.

Podlahy

Kvalitné vodeodolné laminátové podlahy pre dlhú životnosť a estetiku.

Obklady a dlažby

Rektifikované veľkoformátové obklady a dlažby s moderným dizajnom a precíznym vyhotovením.

Interiérové dvere

Kvalitné drevené dvere v obložkovej zárubni, ktoré dotvárajú moderný interiér.

Vaňa / Sprchový kút

Možnosť výberu medzi elegantnou vaňou alebo priestranným sprchovým kútom s bezbariérovým vstupom.

Umývadlá a batérie

Kvalitné dizajnové umývadlá doplnené úspornými a štýlovými batériami pre maximálny komfort.

Presvetlenie a svetlá výška

Veľkoformátové hliníkové francúzske okná s izolačným trojsklom, výška miestností až 2,8 m.

Tienenie

Elektricky ovládané vonkajšie žalúzie pre maximálny komfort a reguláciu presvetlenia.

Rekuperácia a klimatizácia

Aktívna výmena čerstvého vzduchu a chladenie pomocou lokálnych jednotiek.

Sadrové omietky

Elegantný hladký vzhľad, ktorý umožňuje bezproblémovú aplikáciu tapety.

Podlahové kúrenie

Riešenie, ktoré šetrí energie a zabezpečuje príjemné teplo pod nohami.

Podlahy

Kvalitné vodeodolné laminátové podlahy pre dlhú životnosť a estetiku.

Kontaktujte nás

V prípade, že máte záujem o niektorý z bytov alebo domov v našom projekte, zanechajte nám svoj kontakt. V dohľadnej dobe vás budeme kontaktovať.

Mgr. Andrea Bubelíny, MBA, Ing. Matúš Buček

Mgr. Andrea Bubelíny, MBA

predajca

predaj@suchyvrch.sk +421 911 933 903

Ing. Matúš Buček

konateľ spoločnosti

suchyvrch@suchyvrch.sk +421 908 868 858

Mám predbežný záujem o kúpu

Financovanie

Financovanie s prehľadom a pohodlne. Na nákup vášho nového bytu vám teraz stačí len 15 % z ceny.

1.

15 % pri podpise zmluvy o budúcej zmluve

2.

85 % po kolaudácii bytového/rodinného domu

Voľné byty v ponuke

ČÍSLO BYTU BUDOVA TYP BYTU POSCHODIE POČET IZIEB CELKOVÁ VÝMERA CENA DOSTUPNOSŤ
105 BD1 Smart 2 3 81,61 m2 284 900 € Voľný
205 BD2 Smart 1 3 70,00 m2 274 900 € Voľný
303 BD3 Garden 1 3 103,00 m2 364 900 € Voľný
305 BD3 Smart 2 3 82,67 m2 294 900 € Voľný
405 BD4 Panorama 1 3 65,00 m2 264 900 € Voľný

Vizualizácie

Byt 303 vizualizácia Byt 303 vizualizácia Byt 303 vizualizácia Byt 303 vizualizácia Byt 303 vizualizácia Byt 303 vizualizácia Byt 303 vizualizácia Byt 303 vizualizácia Byt 303 vizualizácia Byt 303 vizualizácia Byt 303 vizualizácia Byt 303 vizualizácia Byt 303 vizualizácia Byt 303 vizualizácia Byt 303 vizualizácia Byt 303 vizualizácia Byt 303 vizualizácia Byt 303 vizualizácia Byt 303 vizualizácia Byt 303 vizualizácia Byt 303 vizualizácia Byt 303 vizualizácia Byt 303 vizualizácia Byt 303 vizualizácia

Projekt realizuje FWD construct s.r.o, člen skupiny KLM real estate a.s.

facebook SuchyVrch instagram SuchyVrch
predaj@suchyvrch.sk
Ochrana osobných údajov Kontakt